Оренда офісу Дорогожичі, Теліги Олени вул., 6, Київ
8 кімн. | 2/5 пов. | 1400 м²
Інформація щодо пропозиції
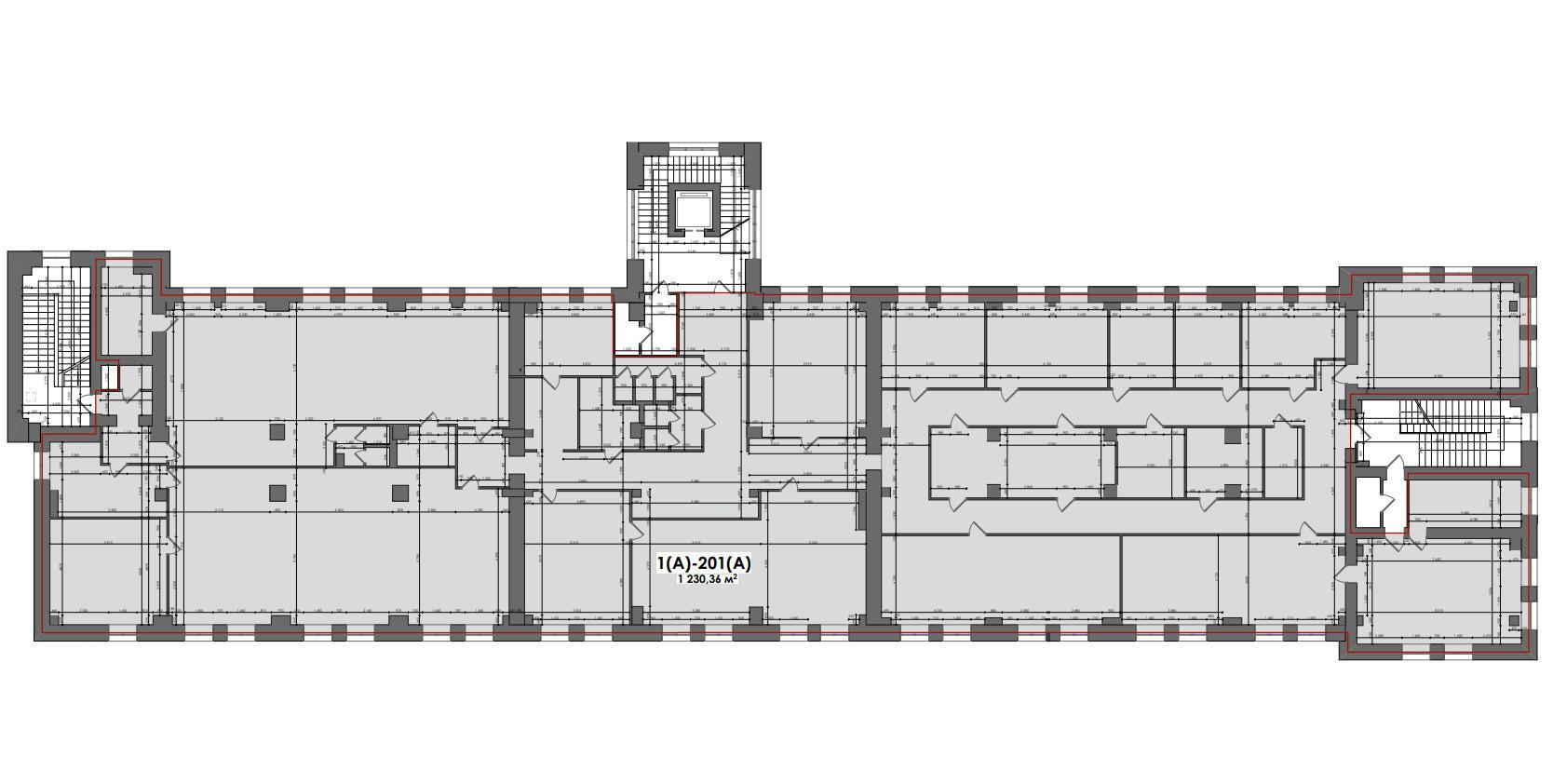
Аренда просторного офиса в Бизнес Центре класса " В " по адресу улица Елены Телиги. Этаж 2/5 этажного нежилого здания. Полезная площадь офиса 1 230.36 м2. Арендуемая площадь 1 390.31 м2 ( 13 % коэффициент BOMA ). Фотографии и планировка соответствуют реальности. Планировка - open space + рабочие зоны + кабинеты/переговорные, кухня, санузлы, кладовки, серверная. Состояния - хороший офисный ремонт. Офис оснащен всем необходимым для комфортной и безопасной работы. Отличная транспортная развязка, в пешей доступности остановка общественного транспорта и станция метро Дорогожичи 5 минут пешком.
Вакантность в этом БЦ - 353 м2, 732 м2, 1 390 м2.
Оснащения Бизнес Центра:
1. Система приточно-вытяжной вентиляции.
2. Система кондиционирования.
3. Автономное отопление.
4. Оптоволоконные линии связи.
5. Система контроля доступа.
6. Противопожарная система безопасности.
7. Круглосуточная физическая охрана.
8. Видеонаблюдение (периметр, холл, лифты, помещения общего пользования, парковка).
9. Лифты - 4 шт., фирмы OTIS.
10. Большая наземная парковка.
11. Генератор.
Коммерческие условия:
Арендная ставка - 16.72 $/м2 с эксплуатации + НДС + коммунальные услуги.
- Ціна: 23 250 $ (≈17 $ за кв. метр)
- Додаткові платежі: плата по лічильниках
- Ремонт: євроремонт
- Кількість приміщень: 8
- Площа загальна, м²: 1400
- Поверх: 2/5
- Рік будівництва: 2016-2020
- Розташування: центр міста
- Краєвид із вікна: двір, вулиця
Комунікації
- Вода:
- центральна;
- Газ:
- немає;
- Опалення:
- автономне;
- Каналізація:
- центральна;
- Інтернет:
- оптоволокно;
- Лічильники:
- холодна вода, гаряча вода;
Параметри об’єкта
- Ліфт:
- пасажирський, вантажний;
- Під’їздна дорога:
- асфальт;
Благоустрій
- Кондиціювання:
- спліт-системи;
- Додатково:
- кондиціювання, зарядка для електромобілів;
- Безпека:
- охоронець, домофон, відеодомофон, кодовий замок, броньовані двері, пожежна сигналізація, протипожежна система, охоронна сигналізація, відеонагляд, охорона території, укриття, паркан;
- Автономність:
- Працює ліфт, Працює інтернет, Є вода, Є опалення, Є резервне живлення;
Інфраструктура та сервіс
- Паркінг:
- клієнтський паркінг;
- Заклади освіти:
- школа, дитсадок;
- Банківськи послуги:
- відділення банку, банкомат, термінал прийому платежів, пункт обміну валют;
- Побутовий сервіс:
- мінімаркет, супермаркет, торгівельний центр, ринок, парковка перед будинком, закріплене паркомісце, аптека, клініка, перукарню, пошта, хімчистка;
- Релаксаційні сервіси:
- cinema-theater, фітнес центр, більярд, сауна, басейн, парк (сад), дитячий майданчик;
- Об’єкти громадського харчування:
- кафе, ресторан, фастфуд, їдальня, бар;
Інше
Аренда Офиса в БЦ " West Side " 1 390 м2 ул Елены Телиги 6. м. Дорогожичи 5 минут
- Дата оновлення інформації:
- 07.10.2025;