Оренда торгового об'єкту Соборності вул., Кривий Ріг
1/5 пов. | 41.70 м²
7 000 ₴
Номер: RC-220-741
Інформація щодо пропозиції
Пропонуємо в оренду магазин на Соцмісті по вул. Соборності, поруч із ТК «Піраміда». Локація з активним пішохідним трафіком ідеально підходить для роздрібної торгівлі, сфери послуг, шоуруму та ін.
Технічні характеристики:
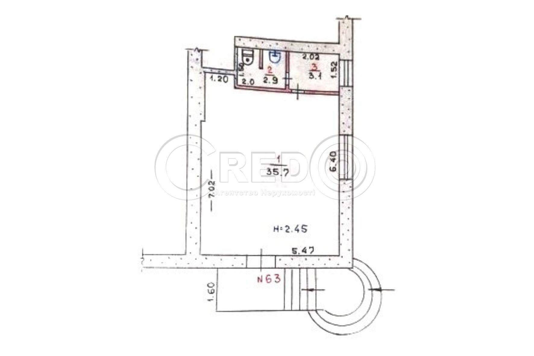
Загальна площа – 41,7 кв.м
Торговельний зал – 35,7 кв.м
Приміщення у робочому стані
Комунікації:
Центральне опалення
Водопостачання
Санвузол
Електропостачання 8кВт
Плюси локації:
Поруч ТК «Піраміда», ринок
Стабільний пішохідний трафік
Розвинена інфраструктура району
Зручне розташування для клієнтів
Оренда 7 000грн + комун. платежі.
Вільне з 1 березня.
За будь-якими питаннями за цією або схожими пропозиціями звертайтесь за номером телефону, де вам відповість наш ріелтор.
З повагою, команда Credo!
- Ціна: 7 000 ₴ (≈168 ₴ за кв. метр)
- Додаткові платежі: по лічильниках і опалення
- Площа загальна, м²: 41.70
- Поверх: 1/5
- Розташування: центр міста
- Зона: житлова
Комунікації
- Вода:
- центральна;
- Опалення:
- центральне;
- Каналізація:
- центральна;
- Потужність, кВт:
- 8;
- Лічильники:
- холодна вода;
Параметри об’єкта
- Висота стелі:
- 2.45;
- Додаткові параметри:
- з окремим входом;
Благоустрій
- Безпека:
- охоронна сигналізація;
Інфраструктура та сервіс
- Банківськи послуги:
- відділення банку, банкомат, термінал прийому платежів, пункт обміну валют;
- Побутовий сервіс:
- мінімаркет, супермаркет, торгівельний центр, ринок, аптека, клініка, перукарню, пошта, хімчистка;
- Об’єкти громадського харчування:
- кафе, ресторан, фастфуд;
Інше
- Власність:
- приватна;
- Дата оновлення інформації:
- Сьогодні в 10:48;