Оренда офісу Олімпійська, Гайдара вул., 58/10, Київ
8 кімн. | 3/7 пов. | 370 м²
Інформація щодо пропозиції
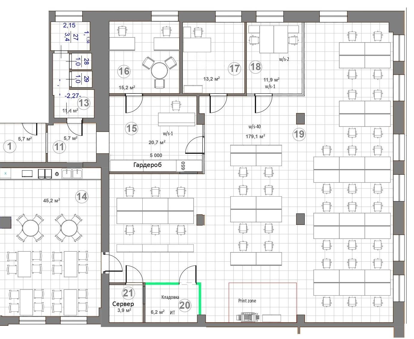
Аренда просторного офиса в центре Киева в Бизнес Центре класса " В + " по адресу улица Семьи Праховых ( Гайдара ). Этаж 3/7 этажного нежилого здания. Полезная площадь офиса 318.2 м2. Арендуемая площадь 362.75 м2. ( 14 % коэффициент BOMA ). Фотографии и планировка соответствуют реальности. Планировка - open space + рабочие зоны + кабинеты/переговорные, кухня, санузлы, кладовки, серверная. Состояния - современный ремонт. Офис оснащен всем необходимым для комфортной и безопасной работы. Отличная транспортная развязка, в пешей доступности остановка общественного транспорта и станции метро Олимпийская и Университет 10 минут пешком.
Оснащения Бизнес Центра:
1. Система приточно-вытяжной вентиляции.
2. Система кондиционирования.
3. Оптоволоконные линии связи.
4. Система контроля доступа.
5. Противопожарная система безопасности.
6. Круглосуточная физическая охрана.
7. Видеонаблюдение (периметр, холл, лифты, места общего пользования, парковка).
8. Лифты - 3 шт., фирмы OTIS.
9. Большая наземная парковка.
10. Генератор.
Коммерческие условия:
Арендная ставка - 21 $/м2 с эксплуатации + НДС + коммунальные услуги.
- Ціна: 7 700 $ (≈21 $ за кв. метр)
- Додаткові платежі: плата по лічильниках
- Ремонт: євроремонт
- Кількість приміщень: 8
- Площа загальна, м²: 370
- Поверх: 3/7
- Рік будівництва: 2016-2020
- Розташування: центр міста
- Краєвид із вікна: вид на місто, двір, вулиця
Комунікації
- Вода:
- центральна;
- Газ:
- немає;
- Опалення:
- центральне;
- Каналізація:
- центральна;
- Інтернет:
- оптоволокно;
- Лічильники:
- холодна вода, гаряча вода, опалення;
Параметри об’єкта
- Ліфт:
- пасажирський, вантажний;
- Під’їздна дорога:
- асфальт;
Благоустрій
- Кондиціювання:
- спліт-системи;
- Додатково:
- кондиціювання, зарядка для електромобілів;
- Безпека:
- охоронець, домофон, відеодомофон, кодовий замок, броньовані двері, пожежна сигналізація, протипожежна система, охоронна сигналізація, відеонагляд, охорона території, укриття, паркан;
- Автономність:
- Працює ліфт, Працює інтернет, Є вода, Є опалення, Є резервне живлення;
Інфраструктура та сервіс
- Паркінг:
- підземний паркінг, клієнтський паркінг;
- Заклади освіти:
- школа, дитсадок;
- Банківськи послуги:
- відділення банку, банкомат, термінал прийому платежів, пункт обміну валют;
- Побутовий сервіс:
- мінімаркет, супермаркет, торгівельний центр, ринок, парковка перед будинком, закріплене паркомісце, аптека, клініка, перукарню, пошта, хімчистка;
- Релаксаційні сервіси:
- cinema-theater, фітнес центр, більярд, сауна, басейн, парк (сад), дитячий майданчик;
- Об’єкти громадського харчування:
- кафе, ресторан, фастфуд, їдальня, бар;
Інше
Аренда Офиса в БЦ " Европассаж " 362 м2 ул Семьи Праховых 58/10. м. Олимпийская 10 минут
- Дата оновлення інформації:
- 26.02.2026;
- Відкладено до:
- Сьогодні;