Продаж квартири Біличі, Київ

4 кімн. | 3/18 пов. | 122 м²

9 800 000 ₴
Номер: SF-3-268-164

Інформація щодо пропозиції

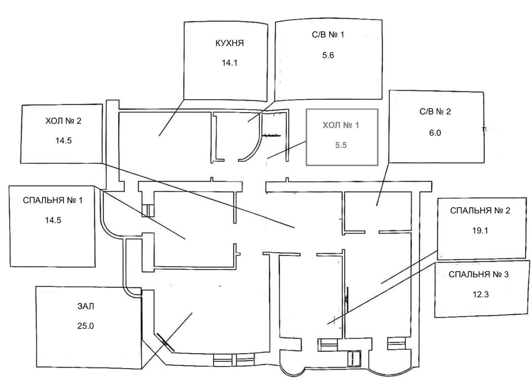
продам 4 к квартиру .будинок розташований у колишній санаторно-курортній зоні, в оточенні трьох паркових зон. З сучасними дитячими, спортивними, футбольними майданчиками. Пішим кроком до станції метро Святошин 5-6 хвилин, до метро Житомирська 7-8 хв. Квартира з чотирма окремими кімнатами розташована на 3-му поверху цегляного 18 поверхвому будинку. Товщина зовнішніх стін 2,5 цегли, забезпечуючи хорошу тепло- та шумоізоляцію, зберігають тепло взимку і прохолоду влітку. Висота стелі 2, 9 м. Планування 4 кімнатнатної квартири : зал 25 м. Кухня 17 м. 3 окремих спальні (19 м, 14.5 м, 12.3 м) , у кожній кімнаті балкон-лоджія (засклені), 2 окремі санвузла. На підлозі натуральна паркет, в холле та кухни плитка, двері з натурального дерева Кондиціонери з функцією обігріву у кожній кімнаті. Квартира обладнана сигналізацією, приєднаною до пульта поліції охорони (знаходиться за півтора кілометри). У будинку три ліфти. Парковка для автомобілів обладнана відеокамерами. Під'їзд будинку також обладнаний відеокамерами та має консьєржа. На першому поверсі будинку продовольчий магазин із товарами першої необхідності. Також у будинку є бомбосховище Поруч одразу кілька державних дитячих садків. Три звичайні школи, гімназія східних мов, та американка школа Kyiv International School. Рік введення в експлуатацію 2003 року.Комісійні Агентства Нерухомості сплачує Покупець.
Надаємо повний спектр послуг з купівлі та продажу квартир та будинків.
Великий досвід допомоги по купівлі квартир за державними програмами:
1) Є-оселя
2) Житло для ВПО та військових (постанова 280)
3) Сертификат на зруйноване житло
З повагою, «Ideal Home»

  • Ціна: 9 800 000 ₴ (≈80 328 ₴ за кв. метр)
  • Ремонт: капітальний ремонт
  • Клас житла: комфорт
  • Кількість кімнат: 4
  • Площа загальна, м²: 122
  • Площа кухні, м²: 17.00
  • Поверх: 3/18
  • Рік будівництва: 2001-2010
  • Санвузлів: 2

Комунікації

Вода:
центральна;
Опалення:
центральне;

Параметри об’єкта

Матеріал стін:
цегла;

Інше

Дата оновлення інформації:
20.01.2026;