Продаж квартири Вокзальна, Липківського Василя Митрополита вул., 37В, Київ

1 кімн. | 25/25 пов. | 55.60 м²

130 000 $
Номер: SF-3-306-503

Інформація щодо пропозиції

Дизайнерська квартира в центрі з панорамним видом | ЖК «Династія»
вул. Липківського, 37в
25 поверх із 25
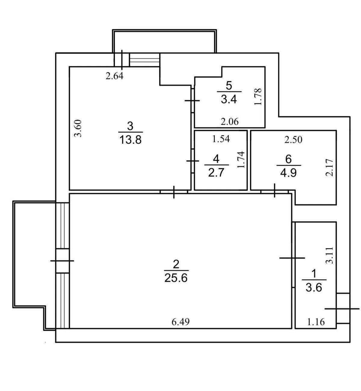
Площа — 55,6 м²
Висота стелі — 4 м
Пропонується унікальна квартира з авторським ремонтом 2025 року в будинку бізнес-класу. Останній поверх, панорамність та нестандартна архітектура створюють відчуття простору і приватності.
Планування:
• Простора кухня-вітальня
• Окрема спальня з гардеробною та master-ванною
• Додатковий санвузол з душовою та господарською зоною
• Два балкони
Ремонт та оснащення:
Виконано дизайнерський ремонт преміального рівня з використанням якісних матеріалів та техніки:
• Індивідуально виготовлені меблі
• Вбудована кухня з композитною стільницею
• Повний комплект техніки (включно з посудомийною та прально-сушильною машиною)
• Потужний кондиціонер Daikin
• Підігрів підлоги
• Іспанська плитка та паркетна дошка
• Двері прихованого монтажу (2,4 м)
• Бойлер з Wi-Fi
Комфорт і безпека:
• Генератор — ліфт та критична інфраструктура працюють завжди
• Закрита територія з охороною 24/7
• Консьєрж, контроль доступу
• Власна котельня
• Підземний та гостьовий паркінг
Інфраструктура комплексу:
• Кафе, ресторани, кондитерські
• Супермаркети
• Дитячий садок
• Спортзал, салони краси
Локація:
• Центр міста, Солом’янський район
• Поруч Солом’янський парк
• Школи, дитячі садки
• Метро Вокзальна — 15 хвилин пішки
• Зручна транспортна розв’язка
Квартира ідеально підійде для тих, хто цінує стиль, якість та життя в центрі столиці.
Без комісії. Продаж від власника.
Телефонуйте для перегляду — це дійсно унікальна пропозиція.

  • Ціна: 130 000 $ (≈2 338 $ за кв. метр)
  • Ремонт: авторський дизайн
  • Клас житла: бізнес
  • Типове планування: нестандартне планування
  • Схема кімнат: роздільна
  • Кількість кімнат: 1
  • Площа загальна, м²: 55.60
  • Площа кухні, м²: 25.00
  • Поверх: 25/25
  • Рік будівництва: 2011-2015
  • Санвузлів: 2

Комунікації

Вода:
центральна;
Опалення:
центральне;

Параметри об’єкта

Матеріал стін:
моноліто-каркас;

Інше

Дата оновлення інформації:
20.04.2026;
Відкладено до:
Сьогодні;