Продаж квартири Саксаганський, Кривий Ріг
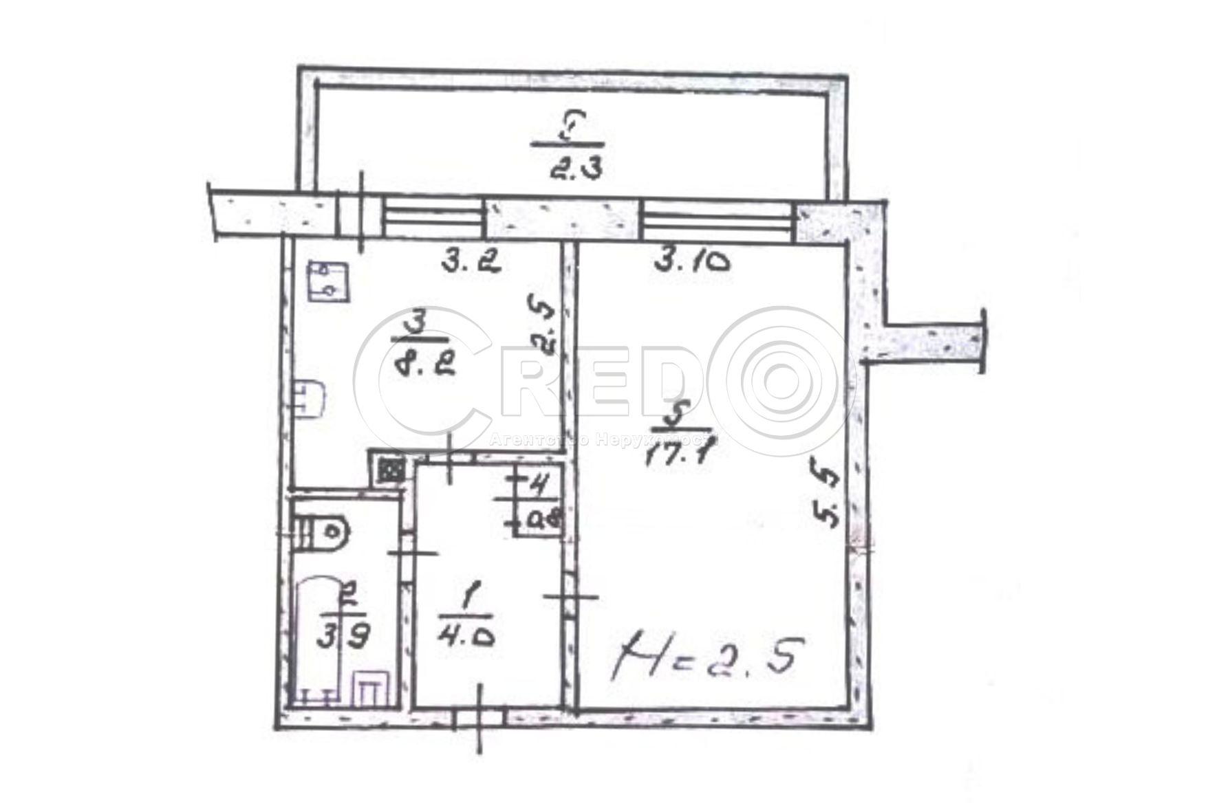
1 кімн. | 1/9 пов. | 36.30/17.10/8.20 м²
Інформація щодо пропозиції
Пропонуємо до продажу унікальну 1кімнатну квартиру
у Саксаганському районі, мікрорайон Гірницький,49.
У розташованій на першому поверсі квартирі маємо
величезну лоджію з підвалом!
Ще один плюс - встановлені високоякісні столярні вироби!
Про об'єкт:
- тихий, спальний, зелений район.
- 1 поверх 9типоверхового будинку.
- загальна площа 36.3м.кв. (без урахування лоджії).
- житлова площа 17,1 м.кв.
- без боргів.
Особливості квартири:
- прибудова - лоджія 6,5м х 1,5м вздовж всієї
квартири, зручний вихід з кухні.
- має підвальне приміщення.
- зручно для сім'ї що має домашніх тваринок,
ваші собачки-котики будуть у захваті!
Дуже функціонально!
- почато ремонт зі встановлення столярки
високої якості: вхідні, тамбурні, міжкімнатні
двері - натуральне дерево, лаковані.
- балконний блок, велике вікно у кімнаті -
натуральне дерево, склопакет, гарна фурнітура.
- віконна група лоджії посилена для безпеки гратами.
Техніка:
квартира забезпечена:
- газова плита.
- бойлер.
- лічильники.
- кондиціонер.
- холодильник.
- пральна машина.
- кухонні меблі.
Локація:
- будинок знаходиться в зеленій зоні.
- поряд Центр дитячої творчості "Сонях".
- дитячий садочок № 81, гімназії № 124, № 68.
Пропонована ціна 14 500$
- Ціна: 14 500 $ (≈399 $ за кв. метр)
- Ремонт: частковий ремонт
- Клас житла: комфорт
- Кількість кімнат: 1
- Площа загальна, м²: 36.30
- Площа житлова, м²: 17.10
- Площа кухні, м²: 8.20
- Поверх: 1/9
- Рік будівництва: 1971-2000
- Санвузлів: 1
- Балконів: 1
- Краєвид із вікна: парк (сад)
- Тип двору: прохідний
Комунікації
- Вода:
- центральна;
- Газ:
- є;
- Опалення:
- центральне;
- Лічильники:
- холодна вода, газ, опалення;
Параметри об’єкта
- Матеріал стін:
- залізобетон;
- Матеріал перекриттів:
- залізобетон;
- Висота стелі:
- 2.5;
Стан об’єкта
- Сантехніка:
- вітчизняна;
- Труби:
- сталь;
- Підлога:
- стяжка;
- Стіни:
- чорнова штукатурка, шпалери;
- Стеля:
- штукатурка;
- Радіатори опалення:
- чавун;
- Проводина:
- алюміній;
- Вікна:
- дерев'яний склопакет, гарний стан;
- Двері вхідні:
- дерево, гарний стан;
- Двері:
- дерево, гарний стан;
Благоустрій
- Кондиціювання:
- спліт-системи;
- Водонагрівач:
- електричний;
- Система очищення води:
- механічний фільтр;
- побутова техніка:
- газова плита, холодильник, пральна машина на кухні, кондиціонер;
- Додатково:
- меблі, тераса;
- Безпека:
- гратки на вікнах;
Інфраструктура та сервіс
- Заклади освіти:
- школа, дитсадок;
- Побутовий сервіс:
- мінімаркет, супермаркет, парковка перед будинком, аптека;
- Релаксаційні сервіси:
- дитячий майданчик, озеро / річка;
Інше
- Власність:
- приватна;
- Дата оновлення інформації:
- 21.04.2026;
- Відкладено до:
- Сьогодні;