Продаж будинку Путивльська вул., 81, Київ

4 кімн. | 124/70/13.40 м² | 4.80 сот.

123 000 $
Номер: SH-210-540

Інформація щодо пропозиції

Продається будинок з великими можливостями!
Місце, яке надихає!
Тиха і затишна локація, де ви можете створити свій ідеальний простір для життя! Без шуму великого міста, але при цьому з усіма зручностями поруч.
Про будинок
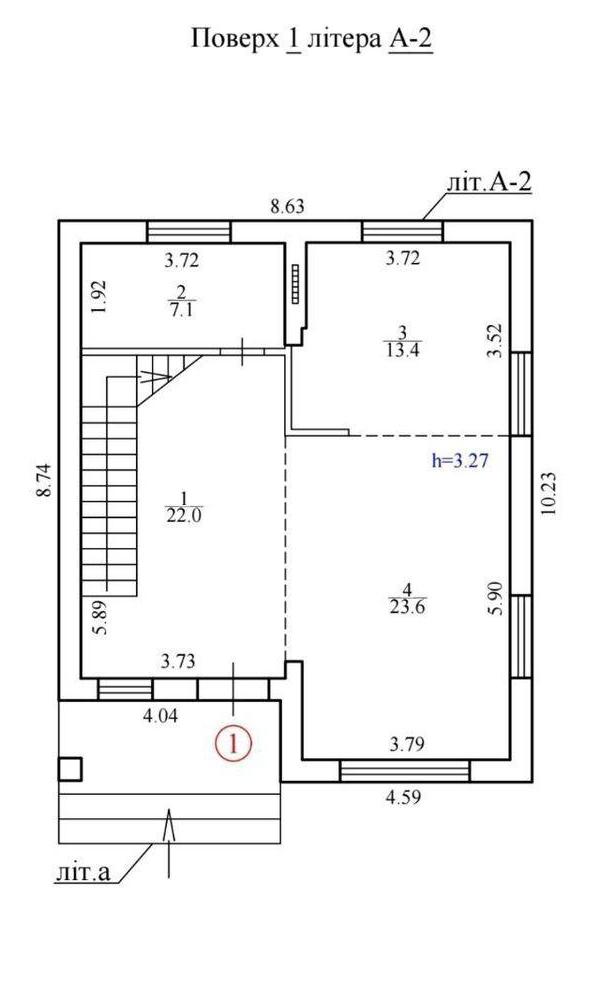
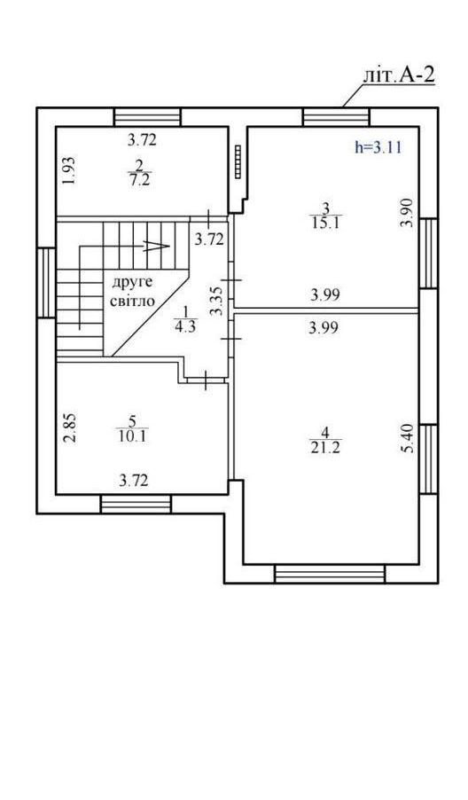
Площа: 124 м², житлова 70 м.кв. (2 поверхи).
Ділянка: 4 сотки, ідеально підходить для саду, гаража чи додаткових будівель.
Кількість кімнат: 4 просторі кімнати для вільного планування.
Стан: Потрібен капітальний ремонт, що дає можливість створити саме той простір, який ви мріяли!
Чому це вигідно?
Ви отримуєте можливість реалізувати власні ідеї у створенні інтер’єру та планування.
Утеплений — мінвата 10 см забезпечує тепло взимку та комфорт влітку!
Комунікації: електрика, та септики — усе вже підключено та готове до використання.
Розтермінування платежу. Це зручно, якщо ви хочете розплатитися поетапно.
Програма єОселя — вигідні умови для покупців, які хочуть отримати державну підтримку.
Комісійні АН сплачує покупець!
За додатковою інформацією звертайтеся за вказаним номером телефона. Надаємо повний спектр послуг з купівлі та продажу квартир та будинків.
Великий досвід допомоги в купівлі квартир за державними програмами:
1) єОселя
2) Житло для ВПО та військових (постанова 280)
3) Сертифікат за зруйноване житло (єВідновлення)
Юридична консультація щодо придбання нерухомості, попередній прорахунок витрат при купівлі житла, для наших клієнтів безкоштовно!
З повагою АН" Ideal Home" !

  • Ціна: 123 000 $ (≈992 $ за кв. метр)
  • Клас житла: комфорт
  • Ремонт: без ремонту
  • Кількість кімнат: 4
  • Кількість спалень: 3
  • Площа загальна, м²: 124
  • Площа житлова, м²: 70
  • Площа кухні, м²: 13.40
  • Площа ділянки, сот.: 4.80
  • Кількість поверхів: 2
  • Краєвид із вікна: двір, вулиця

Комунікації

Вода:
ні;
Газ:
немає;
Опалення:
електричне;
Каналізація:
септик;

Параметри об’єкта

Матеріал стін:
газоблок;
Матеріал перекриттів:
залізобетон;
Дах:
бітумна черепиця;
Висота стелі:
3;
Під’їздна дорога:
асфальт;
Покриття ділянки:
без покриття;
Утеплення:
Зовнішнє;

Інше

Власність:
приватна;
Дата оновлення інформації:
08.04.2026;
Відкладено до:
Сьогодні;