Продаж будинку Лісова, Садовий пров., 16, Київ
4 кімн. | 128.60/70.50/14.50 м² | 5 сот.
Інформація щодо пропозиції
Будинок біля метро Лісова. Простір, тиша, можливість створити свій ідеальний дім
Продається двоповерховий будинок у межах Києва, у затишній зеленій зоні, поруч із метро Лісова. Локація ідеально поєднує спокій приватного сектору з близькістю до міської інфраструктури.
Можливий продаж за Державною програмою і в розстрочку оплати.
Якщо ви шукаєте можливість створити дім під себе — ця пропозиція саме для вас.
Основні характеристики:
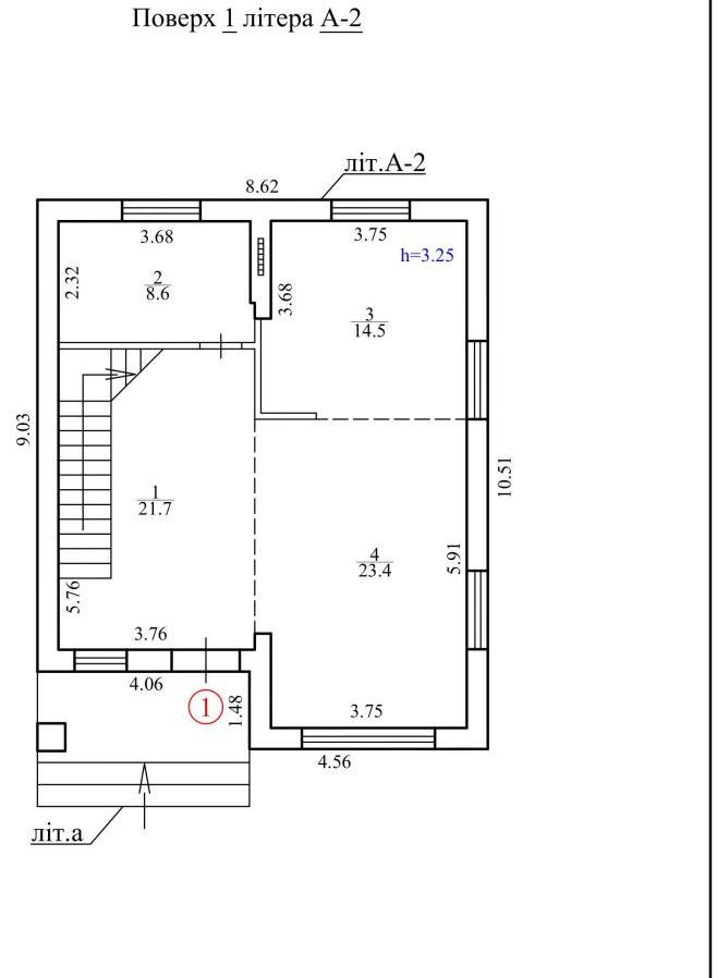
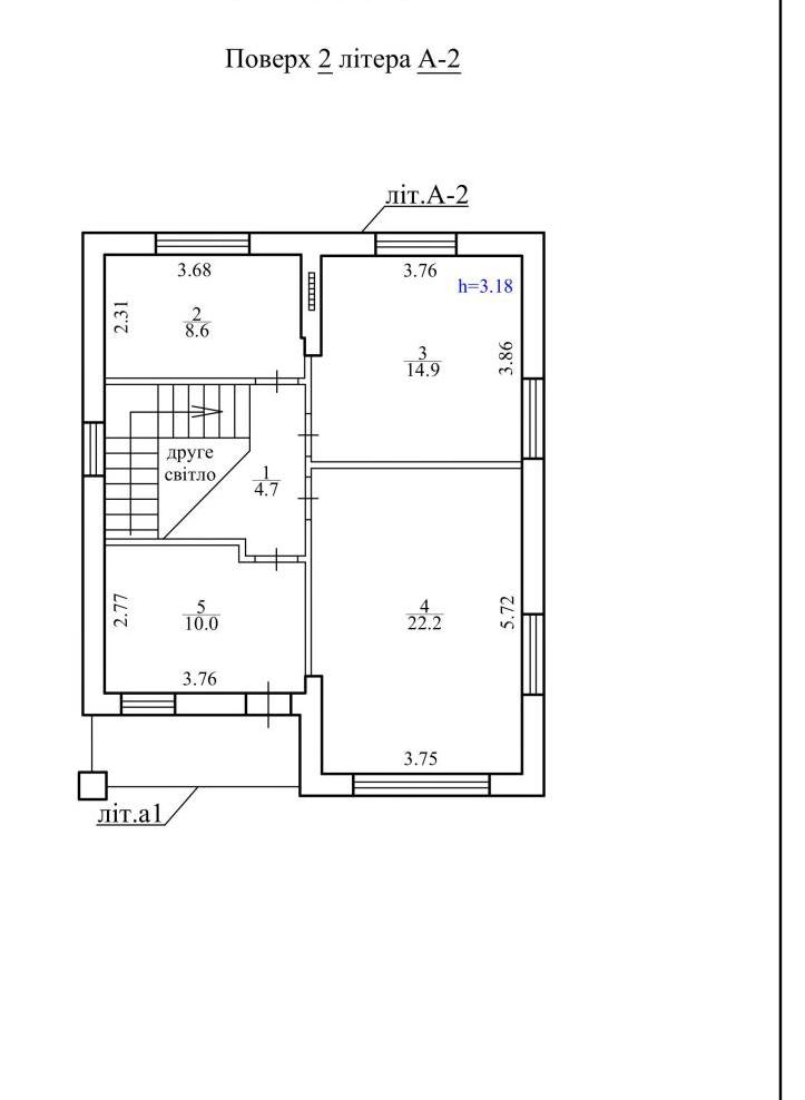
Площа будинку: 125 м²
Житлова площа: 68.5 м²
Кількість кімнат: 4
Площа ділянки: 5 соток
Поверховість: 2 поверхи
Планування: суміжно-роздільне
Стан: потребує капітального ремонту
Утеплення: мінеральна вата (10 см) — комфортна температура в будь-яку пору року
Комунікації та технічні умови:
Септик із шести бетонних кілець
Електропостачання 7кВт
Що робить цей будинок особливим:
Затишне розташування без щільної забудови навколо — ідеальне для тих, хто цінує тишу та приватність
Водночас зручний виїзд до основних транспортних артерій міста та швидкий доступ до метро
Чудова основа для перепланування та реалізації власних дизайнерських ідей
Власна земельна ділянка — простір для саду, літньої тераси, дитячого майданчика або басейну
Фінансові можливості:
Придбати можна за програмою єОселя, Євідновлення
Цей будинок — гарний шанс інвестувати у власний комфорт і свободу. Вигідна альтернатива квартирі в багатоповерхівці.
Комісійні АН сплачує покупець!
За додатковою інформацією звертайтеся за вказаним номером телефона. Надаємо повний спектр послуг з купівлі та продажу квартир та будинків.
Великий досвід допомоги в купівлі квартир за державними програмами:
1) єОселя
2) Житло для ВПО та військових (постанова 280)
3) Сертифікат за зруйноване житло (єВідновлення)
Юридична консультація щодо придбання нерухомості, попередній прорахунок витрат при купівлі житла, для наших клієнтів безкоштовно!
З повагою АН" Ideal Home" !
- Ціна: 128 000 $ (≈995 $ за кв. метр)
- Клас житла: комфорт
- Ремонт: без оздоблювальних робіт
- Кількість кімнат: 4
- Кількість спалень: 3
- Площа загальна, м²: 128.60
- Площа житлова, м²: 70.50
- Площа кухні, м²: 14.50
- Площа ділянки, сот.: 5
- Кількість поверхів: 2
- Рік будівництва: 2022
- Краєвид із вікна: двір, вулиця, ліс
Комунікації
- Вода:
- ні;
- Газ:
- немає;
- Опалення:
- електричне;
- Каналізація:
- септик;
Параметри об’єкта
- Матеріал стін:
- газоблок;
- Матеріал перекриттів:
- залізобетон;
- Дах:
- бітумна черепиця;
- Під’їздна дорога:
- асфальт;
- Покриття ділянки:
- відсипані;
- Утеплення:
- Зовнішнє;
Стан об’єкта
- Вікна:
- металопластик, гарний стан;
- Двері вхідні:
- броньовані, гарний стан;
Благоустрій
- Додатково:
- панорамні вікна;
- Безпека:
- охоронець, відеонагляд, охорона території;
Інфраструктура та сервіс
- Заклади освіти:
- школа;
- Релаксаційні сервіси:
- ліс, озеро / річка;
Інше
- Власність:
- приватна;
- Дата оновлення інформації:
- 25.01.2026;
- Відкладено до:
- Сьогодні;