Цей об'єкт уже не продають
Продаж будинку Нова вул., 26, Личанка, Бучанський район
3 кімн. | 144/85.30/9.80 м² | 12.50 сот.
Інформація щодо пропозиції
Продам будинок Личанка можливий продаж по держ програмах
Фундамент: бетон
Стіни: газоблок
Покрівля: металочерепиця
Перекриття: дерево
Підлога: плитка
Висота: 2.90 м
Площа забудови: 85.4 м²
Об’єм: 248 м³
Інженерні мережі: електрика, водопровід, каналізація — наявні; газопровід — відсутній; опалення — від індивідуальної установки.
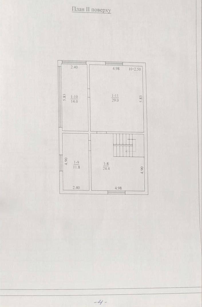
2. ІІ поверх
Стіни: газоблок
Покрівля: металочерепиця
Перекриття: дерево
Підлога: дерево
Висота: 2.70 м
Площа забудови: 94.7 м²
Об’єм: 256 м³
Інженерні мережі: електрика — є; водопровід, каналізація, газ — відсутні; опалення — від індивідуальної установки.
Півниця
Фундамент: котлован
Стіни: бетон
Підлога: глиняна
Висота: 2.40 м
Площа забудови: 21.2 м²
Об’єм: 51 м³
Ганок
Рік: 2019
Гараж
Фундамент: бетон
Стіни: газоблок
Покрівля: металочерепиця Перекриття: дерево
Підлога: стяжка Висота: 2.70 м
Площа забудови: 54.1 м²
Об’єм: 146 м³
Вбиральня-душова
Фундамент: бетон
Стіни: цегла
Покрівля: металопрофіль
Підлога: стяжка
Висота: 2.40 м
Площа забудови: 8.0 м²
Об’єм: 19 м³
Кірниця
Матеріал: бетонні кільця
Септик
Матеріал: бетонні кільця
Паркан
Матеріал: металопрофіль Комісійні АН сплачує покупець.
За додатковою інформацією звертайтеся за вказаним номером телефона. Надаємо повний спектр послуг з купівлі та продажу квартир та будинків.
Великий досвід допомоги в купівлі квартир за державними програмами:
1) єОселя
2) Житло для ВПО та військових (постанова 280)
3) Сертификат за зруйноване житло (єВідновлення)
Юридична консультація щодо придбання нерухомості, попередній прорахунок витрат при купівлі житла, для наших клієнтів безкоштовно!
З повагою АН Ideal Home!
- Ціна: 82 500 $ (≈573 $ за кв. метр)
- Клас житла: комфорт
- Ремонт: частковий ремонт
- Кількість кімнат: 3
- Площа загальна, м²: 144
- Площа житлова, м²: 85.30
- Площа кухні, м²: 9.80
- Площа ділянки, сот.: 12.50
- Кількість поверхів: 2
- Краєвид із вікна: двір, парк (сад)
Комунікації
- Вода:
- свердловина;
- Газ:
- немає;
- Опалення:
- електричне, твердопаливний котел;
- Каналізація:
- септик;
- Лічильники:
- холодна вода, гаряча вода, опалення;
Параметри об’єкта
- Матеріал стін:
- цегла;
- Матеріал перекриттів:
- залізобетон;
- Дах:
- металочерепиця;
- Висота стелі:
- 2.8;
- Під’їздна дорога:
- асфальт;
- Покриття ділянки:
- без покриття;
- Утеплення:
- Зовнішнє;
Стан об’єкта
- Сантехніка:
- імпортна, гарний стан;
- Труби:
- пластик, гарний стан;
- Підлога:
- лінолеум, плитка на кухні, плитка у ванній, гарний стан;
- Стіни:
- шпалери, гарний стан;
- Стеля:
- пофарбовано, гарний стан;
- Радіатори опалення:
- алюміній, гарний стан;
- Проводина:
- мідь, гарний стан;
- Вікна:
- металопластик, гарний стан;
- Двері вхідні:
- броньовані, гарний стан;
- Двері:
- ХДФ, гарний стан;
Благоустрій
- побутова техніка:
- телевізор, плазмовий телевізор, електроплита, холодильник, витяжка;
- Додатково:
- меблі, Wi-Fi, сад, ландшафтний дизайн, город;
- Безпека:
- укриття, паркан;
Інфраструктура та сервіс
- Заклади освіти:
- школа, дитсадок;
- Побутовий сервіс:
- мінімаркет, пошта;
- Релаксаційні сервіси:
- парк (сад), дитячий майданчик, ліс, озеро / річка;
- Об’єкти громадського харчування:
- кафе, бар;
- Дворові будівлі:
- будівля для тварин, погріб;
Інше
- Юридична інформація:
- єВідновлення;
- Власність:
- приватна;
- Дата оновлення інформації:
- 10.12.2025;
- Відкладено до:
- Сьогодні;