Продаж таунхауса Червоний Хутір, Київ

4 кімн. | 105/80/20.00 м² | 2.30 сот.

54 000 $
Номер: SH-217-227

Інформація щодо пропозиції

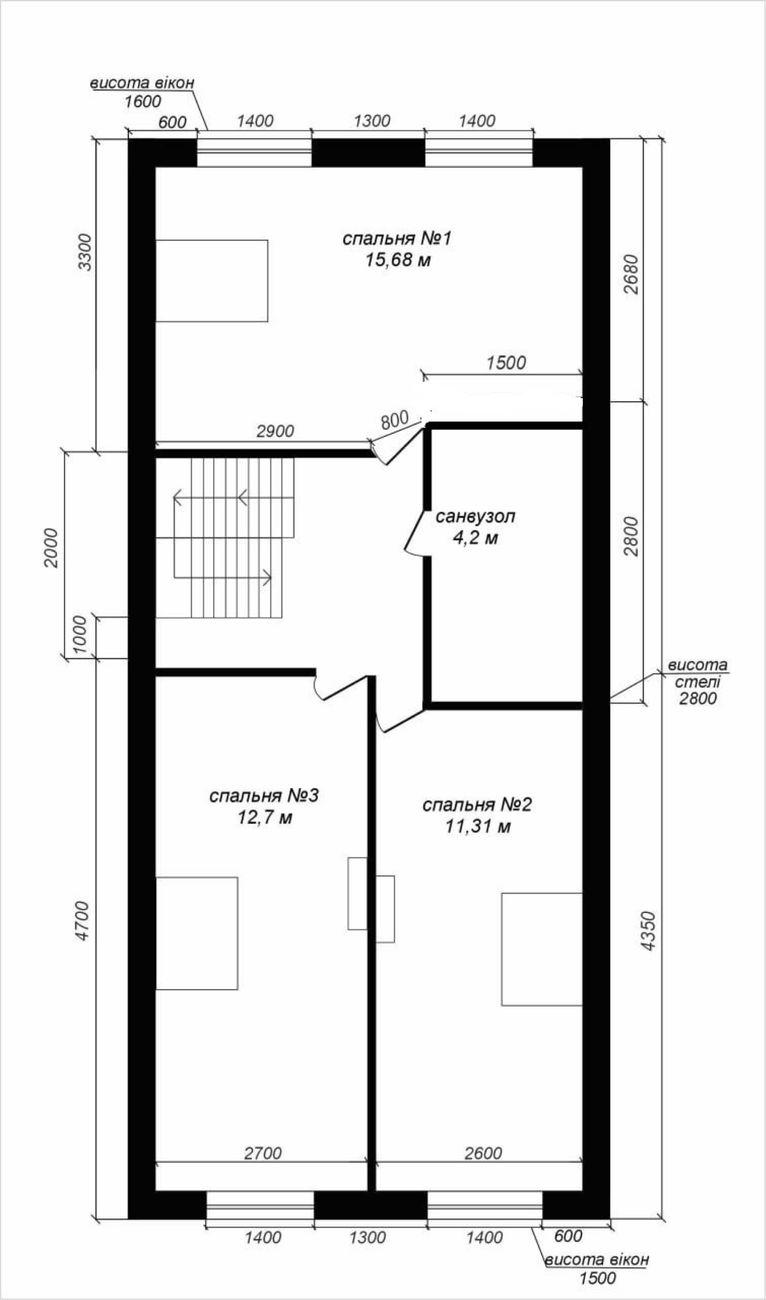
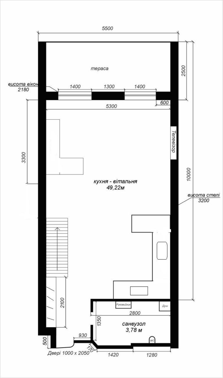
продам 2-х поверховий Таунхаус за 4 км від метро Славутич. площа кожного об'єкту 100 кв м. Площа ділянок від 1,5 до 2,3 сотки. У кожного будинку 2 паркомісця та заднє подвір'я з терасою та місцем для барбекю. Також, своя окрема свердловина на 60 м, септик та електрика 10 КВт! Будівля зроблена з монолітним фундаментом, хорошим утепленням та якісними вікнами. Внутрішнє планування буде зроблено за бажанням покупця. Площа дозволяє розмістити: 1 поверх: студія-кухня з виходом у заднє подвір'я. Передпокій. Санвузол. 2 поверх: 2-3 спальні. Санвузол. поблизу з житлом громадський транспорт, магазини, супермаркети, аптеки, пляжі. Кожне житло оформляється окремо із правом власності. Вартість від 54.000Комісійні АН сплачує покупець.
За додатковою інформацією звертайтеся за вказаним номером телефона. Надаємо повний спектр послуг з купівлі та продажу квартир та будинків.
Великий досвід допомоги в купівлі квартир за державними програмами:
1) єОселя
2) Житло для ВПО та військових (постанова 280)
3) Сертификат за зруйноване житло (єВідновлення)
Юридична консультація щодо придбання нерухомості, попередній прорахунок витрат при купівлі житла, для наших клієнтів безкоштовно!
З повагою АН Ideal Home!

  • Ціна: 54 000 $ (≈514 $ за кв. метр)
  • Клас житла: комфорт
  • Ремонт: без внутрішніх робіт
  • Кількість кімнат: 4
  • Площа загальна, м²: 105
  • Площа житлова, м²: 80
  • Площа кухні, м²: 20.00
  • Площа ділянки, сот.: 2.30
  • Кількість поверхів: 2

Комунікації

Вода:
свердловина;
Газ:
немає;
Опалення:
електричне;
Каналізація:
септик;
Лічильники:
холодна вода, гаряча вода, опалення;

Параметри об’єкта

Матеріал стін:
газоблок;

Інше

Дата оновлення інформації:
02.05.2026;
Відкладено до:
Сьогодні;