Продаж будинку Черешневий пров., 32, Бориспіль
3 кімн. | 63/41/10.00 м² | 6 сот.
Інформація щодо пропозиції
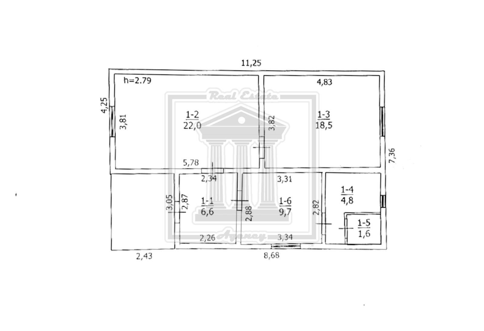
Продається будинок 2013 року, м. Бориспіль, провулок Черешневий.
Загальна площа 63,2 м.кв., житлова площа 40,5 м.кв., площа кухні 9,7 м.кв., гарний стан, складається з кухні та санвузлу; з 3х кімнат (2 роздільні, між ними одна прохідна як хол) звідци можливо облаштувати сходи на другий поверх, наразі це мансардний поверх.
Комунікації: електрика, газ, вода. Опалення: газовий котел. Ділянка 6 соток. Ділянка огорожена, є гараж а також місце для парковки авто.
Тихий центр міста, поруч: школа та дитсадок, спорт школа, міський парк, магазини та супермаркети, кінцева зупинка маршрутного транспорту на Київ.
Телефонуйте!
Комісійні АН сплачує покупець!
За додатковою інформацією звертайтеся за вказаним номером телефона. Надаємо повний спектр послуг з купівлі та продажу квартир та будинків.
Великий досвід допомоги в купівлі квартир за державними програмами:
1) єОселя
2) Житло для ВПО та військових (постанова 280)
3) Сертификат на зруйноване житло (єВідновлення)
Юридична консультація щодо придбання нерухомості, попередній прорахунок витрат при купівлі житла, для наших клієнтів безкоштовно!
З повагою АН Ideal Home!
- Ціна: 75 000 $ (≈1 190 $ за кв. метр)
- Клас житла: комфорт
- Ремонт: косметичний ремонт
- Кількість кімнат: 3
- Кількість спалень: 2
- Площа загальна, м²: 63
- Площа житлова, м²: 41
- Площа кухні, м²: 10.00
- Площа ділянки, сот.: 6
- Кількість поверхів: 1
Комунікації
- Вода:
- свердловина;
- Газ:
- є;
- Опалення:
- газове, камін або пічне;
- Каналізація:
- септик;
Благоустрій
- побутова техніка:
- газова плита, духовка газова, холодильник, пральна машина в санвузлі;
- Додатково:
- камін, меблі;
- Безпека:
- паркан;
Інфраструктура та сервіс
- Паркінг:
- гараж;
- Заклади освіти:
- школа, дитсадок;
- Банківськи послуги:
- банкомат, термінал прийому платежів;
- Побутовий сервіс:
- мінімаркет, ринок, парковка перед будинком, аптека, клініка, перукарню, пошта;
- Релаксаційні сервіси:
- парк (сад), дитячий майданчик, ліс;
- Об’єкти громадського харчування:
- кафе, фастфуд;
Інше
- Власність:
- приватна;
- Дата оновлення інформації:
- 06.01.2026;