Продаж будинку Дмитра Яворницького вул., 1, Київ

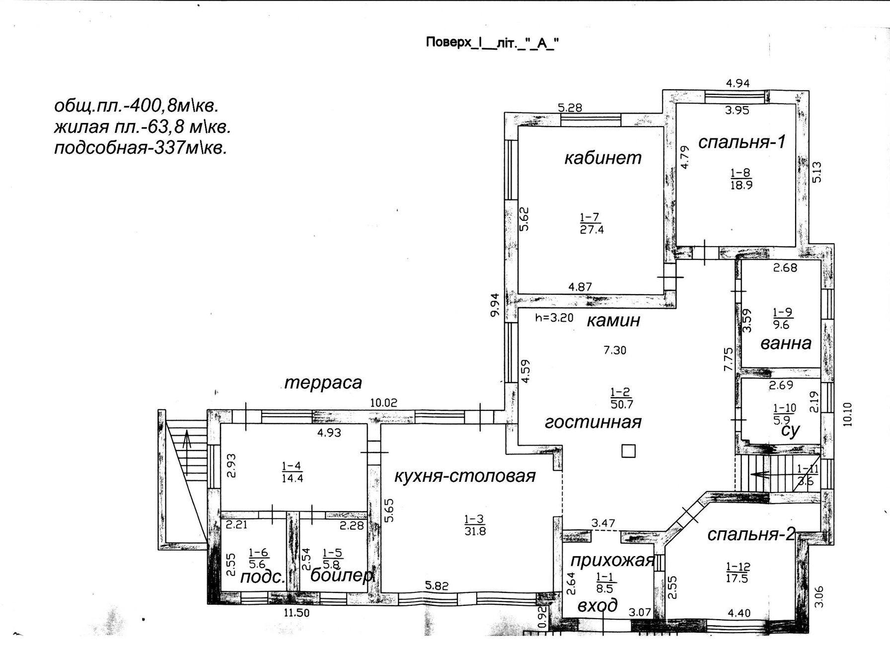
8 кімн. | 400/64/32.00 м² | 10 сот.

359 000 $
Номер: SH-218-363

Інформація щодо пропозиції

Продаж будинка у Києві, Святошинський р-н, 1,5 км до метро Академмістечко. Це місце є ідеальним для усамітнення та спокою, будинок розташований на березі природного озера. Фантастичні види, заповідний. екологічно чистий район! Але в той же час є зручний доступ до безлічі послуг, поруч супермаркети, ресторани, магазини, піцерія, школа, дитячий садок. Відмінний світлий, затишний великий Будинок ідеально підійде для великої сім'ї та для тих, хто планує купувати житло надовго, а також цінує тишу, зручність свого будинку та гарне соціальне середовище навколо. Планування будинку орієнтоване на комфорт. Тристоронній заїзд у двір (ніколи не буде забудований), 15+паркомісць біля будинку. Всі блага цивілізації та неймовірний комфорт приватного будинку!
Ділянка: 10 соток, перша лінія біля води.
Будинок: 1 поверх -200 м.кв.+цокольный рівень - 200м.кв., житилова 63 кв.м. У будинку житловий стан, зроблено фінішне оздоблення. Усі основні роботи вже виконані (стіни-фарбування, підлога-плитка, стелі, енергозберігаючі вікна, броньовані вхідні двері).
1. Стіни будинку-керамічні блоки Wienerberger Porotherm 44
2. Фасадна штукатурка "шуба"
3. Покрівля-безшумна металочерепиця METROBOND
4. Гідроізоляція Реммерс Бауштофтехнік
5. Окрема лінія електроживлення 3ф380В-20кВт. (мін. тариф опалення)
6. Вікна-металопластик "золотий дуб" REHAU 70- Німеччина
7. Дві свердловини-15м. та 45м., септик.
8. Газ біля дверей.
Юридична консультація щодо придбання нерухомості, попередній розрахунок витрат при купівлі житла, для наших клієнтів безкоштовно!
Надаємо повний спектр послуг з купівлі та продажу квартир та будинків.
Великий досвід допомоги з купівлі квартир за державними програмами:
1) є-Оселя
2) Житло для ВПО та військових (постанова 280)
3) Сертифікат на зруйноване житло
З повагою, "Ideal Home"!

  • Ціна: 359 000 $ (≈898 $ за кв. метр)
  • Клас житла: комфорт
  • Ремонт: косметичний ремонт
  • Кількість кімнат: 8
  • Кількість спалень: 3
  • Площа загальна, м²: 400
  • Площа житлова, м²: 64
  • Площа кухні, м²: 32.00
  • Площа ділянки, сот.: 10
  • Кількість поверхів: 1
  • Рік будівництва: 2015

Комунікації

Вода:
свердловина;
Газ:
можлива газифікація;
Опалення:
твердопаливний котел;
Каналізація:
септик;
Лічильники:
холодна вода;

Параметри об’єкта

Матеріал стін:
цегла;
Під’їздна дорога:
насип;

Інше

Дата оновлення інформації:
Учора в 20:52;