Продаж будинку Абрикосова вул., 5, Гатне, Фастівський район

5 кімн. | 150/75/18.00 м² | 5 сот.

92 000 $
Номер: SH-218-495

Інформація щодо пропозиції

Продається новий дуплекс у мальовничій Крюківщині, що практично межує з Києвом. Це ідеальне місце для тих, хто прагне гармонії, не відмовляючись від переваг столичної інфраструктури. Заїзд можливий як з боку Гатного так і з боку Крюківщини.
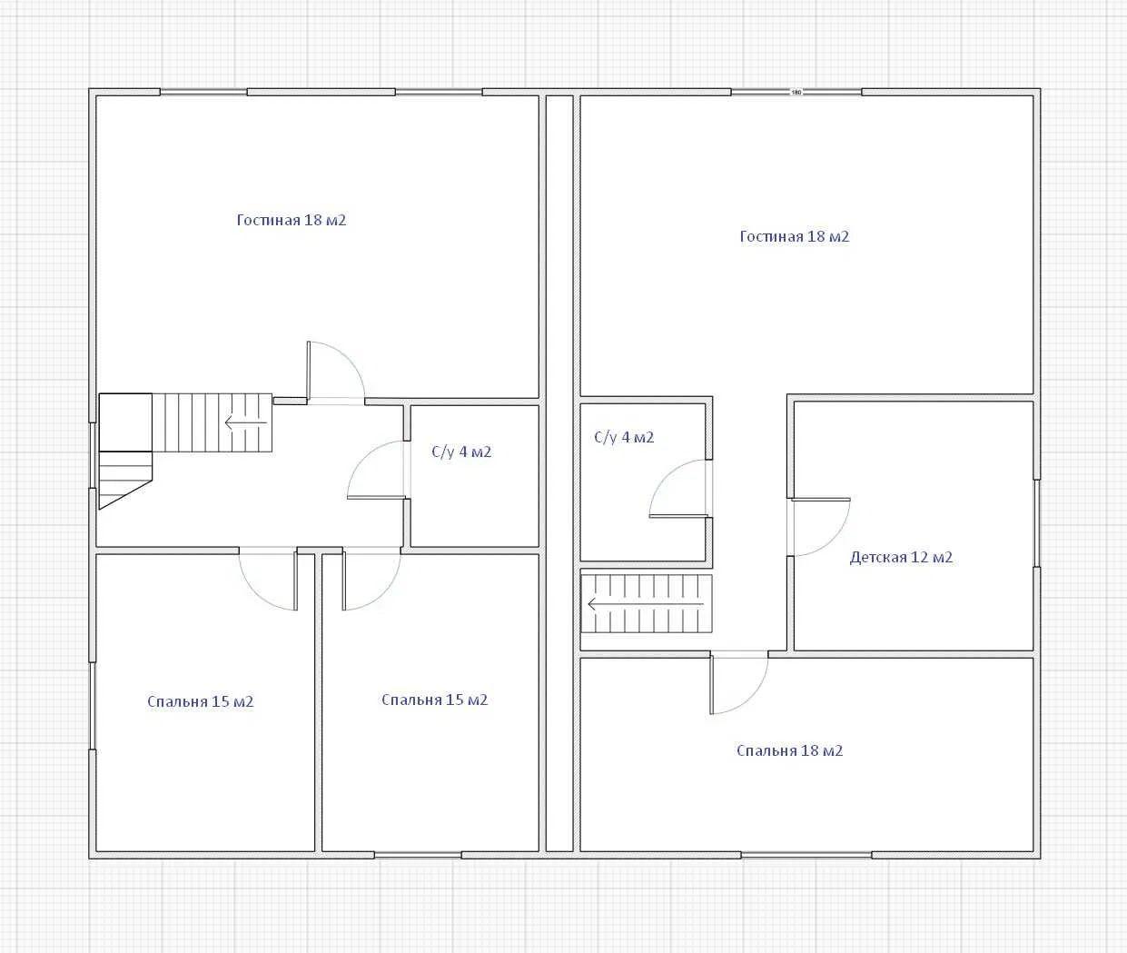
Дуплекс – це повноцінний двоповерховий будинок площею 150 м² з власним гаражем.
МОЖЛИВИЙ ПРОДАЖ ДУПЛЕКСУ ЦІЛКОМ ( 300 м2)
Простір для життя: 5 просторих кімнат та 2 санвузли.
Затишна кухня-їдальня з прямим виходом на власну терасу.
Надійність та якість: Будинок збудований з високоякісних матеріалів.
Стіни: Газоблок БЦК – гарантія тепла та довговічності.
Моноліт: Бетон від відомої компанії "Ковальська" – міцність та надійність конструкції.
Вікна: Профіль Salamander – енергоефективність та звукоізоляція.
Експлуатований дах: Відкриває можливості для створення додаткової зони відпочинку або зеленої тераси з панорамним видом.
Електрика: 10 кВт на кожну частину – достатньо для всіх ваших потреб.
Каналізація: Окремий септик об'ємом 9 м³ з переливом для кожної частини будинку – надійне та автономне рішення.
Вода: Власна свердловина – чиста вода без перебоїв.
Інтернет: Підключений.
Земельна ділянка: Загальна площа 5 соток з цільовим призначенням під забудову – простір для вашого ландшафтного дизайну або зони відпочинку.
На першому поверсі зроблен санвузол та одна кімната (тимчасово проживає родич, це є плюс, бо працює опалення, будинок не простоює)
По документах оформлена тільки ділянка.
Зручна транспортна розв'язка.
До Севастопольської площі та
до ТРЦ "Республіка" – 20 хвилин.
Відмінна пропозиція для тих, хто шукає зручне житло майже у Києві.
Легше працювати з експертом!
Телефонуйте!
Комісійні АН сплачує покупець!
За додатковою інформацією звертайтеся за вказаним номером телефона. Надаємо повний спектр послуг з купівлі та продажу квартир та будинків.
Великий досвід допомоги в купівлі квартир за державними програмами.
З повагою, ваш надійний партнер в світі нерухомості АН Ideal Home!

  • Ціна: 92 000 $ (≈613 $ за кв. метр)
  • Клас житла: комфорт
  • Ремонт: без оздоблювальних робіт
  • Кількість кімнат: 5
  • Кількість спалень: 5
  • Площа загальна, м²: 150
  • Площа житлова, м²: 75
  • Площа кухні, м²: 18.00
  • Площа ділянки, сот.: 5
  • Кількість поверхів: 2

Комунікації

Вода:
свердловина;
Газ:
немає;
Опалення:
автономне;
Каналізація:
септик;

Параметри об’єкта

Матеріал стін:
газоблок;

Інфраструктура та сервіс

Паркінг:
гараж;
Заклади освіти:
школа, дитсадок;
Банківськи послуги:
банкомат;
Побутовий сервіс:
мінімаркет, ринок, парковка перед будинком, аптека, клініка, перукарню, пошта;
Релаксаційні сервіси:
парк (сад), дитячий майданчик, ліс, озеро / річка;
Об’єкти громадського харчування:
кафе, фастфуд;

Інше

Власність:
приватна;
Дата оновлення інформації:
04.05.2026;
Відкладено до:
Сьогодні;