Продаж будинку Фастів
4 кімн. | 70 м² | 12 сот.
Інформація щодо пропозиції
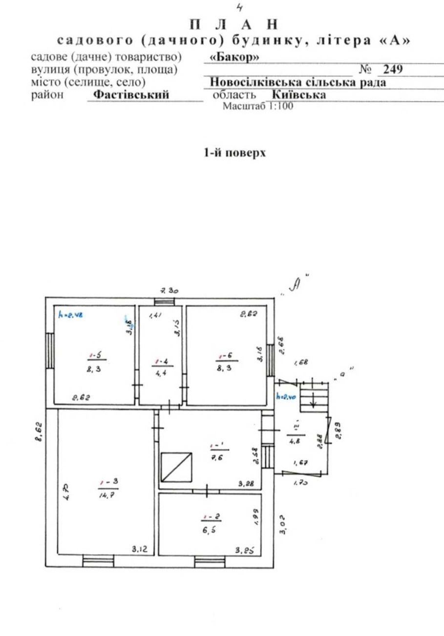
Продаємо будинок дачний кооператив "Бакор" Київська обл Фастівській р- н Новоселківська селищна рада. Будинок будував батько,професійний будівельник. Будував для себе. . Можливо не дуже сучасна планіровка,але міцний і надійний. Має великий подвал,що дуже актуально в наш не простий час. Опалення пічне. Також на печі можна готувати.Є глибока скважина. Участок по факту має 15-16 соток,бо прилягає до свого невеличкого лісу. Також є гостьовий будинок- сарай,якій був викуплений як недобудова у сусідів. Є залізний вагончик під інструменти. Нажаль не довели до кінця деякі роботи ,як каналізація ,вода до будинку. Але думаю,що це не велика проблема і це все можна зробити з часом. Ціна 35.000у.є. Можливий розумний торгКомісійні АН сплачує покупець!
За додатковою інформацією звертайтеся за вказаним номером телефона. Надаємо повний спектр послуг з купівлі та продажу квартир та будинків.
Великий досвід допомоги в купівлі квартир за державними програмами:
1) єОселя
2) Житло для ВПО та військових (постанова 280)
3) Сертификат за зруйноване житло (єВідновлення)
Юридична консультація щодо придбання нерухомості, попередній прорахунок витрат при купівлі житла, для наших клієнтів безкоштовно!
З повагою АН Ideal Homе!
- Ціна: 35 000 $ (≈500 $ за кв. метр)
- Клас житла: комфорт
- Ремонт: косметичний ремонт
- Кількість кімнат: 4
- Площа загальна, м²: 70
- Площа кухні, м²: 10.00
- Площа ділянки, сот.: 12
- Кількість поверхів: 1
Комунікації
- Вода:
- свердловина;
- Газ:
- немає;
- Опалення:
- твердопаливний котел;
- Каналізація:
- немає;
Параметри об’єкта
- Матеріал стін:
- цегла;
Інше
- Дата оновлення інформації:
- Учора в 16:00;