Продаж будинку Ярославська вул., Білогородка, Бучанський район

3 кімн. | 106 м² | 5 сот.

115 000 $
Номер: SH-218-534

Інформація щодо пропозиції

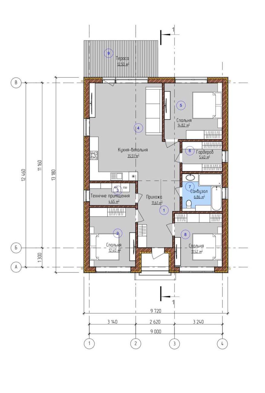
Одноповерховий будинок 106 м2 та з відкритою терасою на 5 сотках землі в топовій локації! 12 км до метро Житомирська. Вулиця Ярославська, асфальтована і забудована новими будинками. Залишився один будинок! Повне завершення - грудень 2025 р. -Велика кухня - студія - 35,5 м2 - 3 спальні - 1 санвузол - Гардеробна, котельня. Стрічковий фундамент Керамоблок КЕРАТЕРМ 250 мм Утеплювач пінопласт 100 мм Дах- металочерепиця Індивідуальна скважина 50 м Септик переливний -12 м3 Світло 17 кВт Газ заведений до будинку Заїзд, стоянка під авто та відмостки будуть вимощені сучасною бруківкою. Забор -металопрофіль, на фасаді - металопрофіль із бетонними стовпчиками. Ворота відкатні , хвіртка. Асфальтований підʼїзд. Дуже гарна локація!

  • Ціна: 115 000 $ (≈1 085 $ за кв. метр)
  • Комісія: 5%
  • Клас житла: комфорт
  • Ремонт: без ремонту
  • Кількість кімнат: 3
  • Площа загальна, м²: 106
  • Площа ділянки, сот.: 5
  • Кількість поверхів: 1

Комунікації

Газ:
є;

Інше

Дата оновлення інформації:
Учора в 18:59;