Продаж таунхауса Богдана Хмельницького вул., 3, Перемога, Броварський район

3 кімн. | 77/30/33.00 м² | 1 сот.

53 000 $
Номер: SH-219-167

Інформація щодо пропозиції

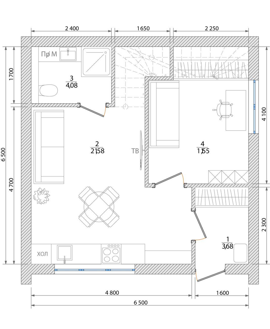
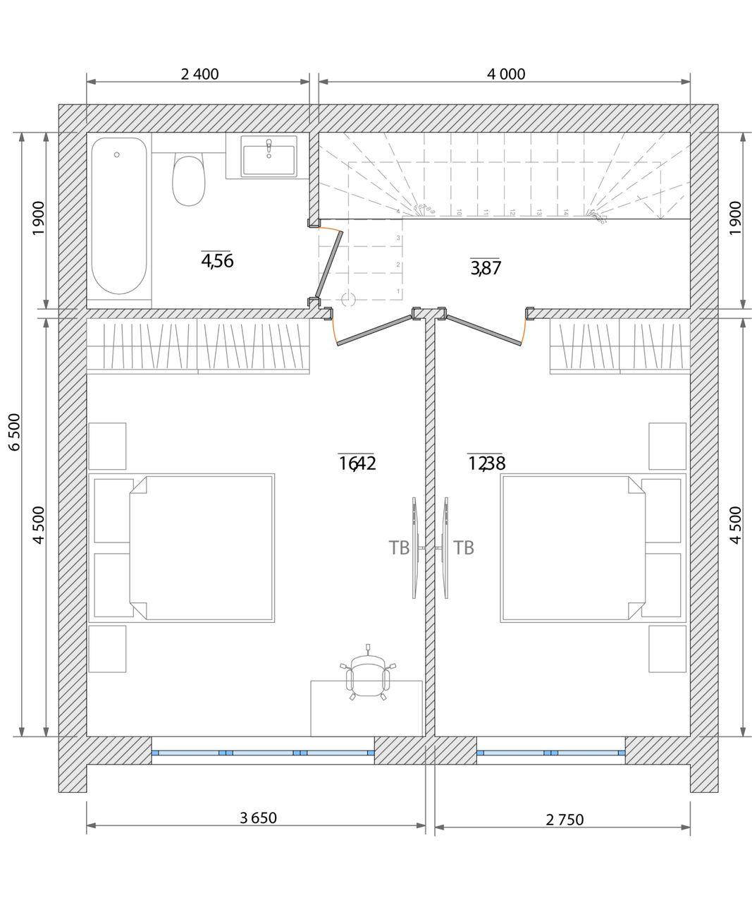
Продається таунхаус без внутрішніх робіт в м. Бровари. Площа 77 м², два поверхи. Житлова площа 30 м².Кухня студія 33 м². Можлива газифікація, панорамні вікна, броньовані двері. Вода та опалення за централізованими комунікаціями. Біосептик. Ділянка 1 сотка.
Краєвид із вікон - на двір, вулицю та парк.
Комісійні Агентства Нерухомості сплачує Покупець.
Надаємо повний спектр послуг з купівлі та продажу квартир та будинків.
Великий досвід допомоги по купівлі квартир за державними програмами:
1) Є-оселя
2) Житло для ВПО та військових (постанова 280)
3) Сертификат на зруйноване житло
4) По програмі Держмолодьжитло
З повагою, «Ideal Home»
Звертайтесь за деталями та оглядом!

  • Ціна: 53 000 $ (≈688 $ за кв. метр)
  • Клас житла: комфорт
  • Ремонт: без внутрішніх робіт
  • Кількість кімнат: 3
  • Кількість спалень: 2
  • Площа загальна, м²: 77
  • Площа житлова, м²: 30
  • Площа кухні, м²: 33.00
  • Площа ділянки, сот.: 1
  • Кількість поверхів: 2
  • Рік будівництва: 2025
  • Краєвид із вікна: двір, вулиця, парк (сад)

Комунікації

Вода:
центральна;
Газ:
можлива газифікація;
Опалення:
автономне;
Каналізація:
септик;
Інтернет:
оптоволокно;
Телебачення:
кабельне ТБ;
Лічильники:
холодна вода, гаряча вода, опалення;

Параметри об’єкта

Матеріал стін:
газоблок;
Матеріал перекриттів:
залізобетон;
Дах:
металочерепиця;
Висота стелі:
2.8;
Під’їздна дорога:
асфальт;
Покриття ділянки:
тротуарна плитка;
Утеплення:
Зовнішнє;

Стан об’єкта

Підлога:
стяжка;
Вікна:
металопластик;
Двері вхідні:
броньовані;

Благоустрій

Додатково:
панорамні вікна;
Безпека:
броньовані двері;

Інфраструктура та сервіс

Заклади освіти:
школа, дитсадок;
Банківськи послуги:
відділення банку, банкомат, термінал прийому платежів;
Побутовий сервіс:
мінімаркет, супермаркет, торгівельний центр, парковка перед будинком, аптека;

Інше

Дата оновлення інформації:
Сьогодні в 12:13;
Відкладено до:
Сьогодні;