Продаж таунхауса Молодецька вул., 39, Білогородка, Бучанський район
3 кімн. | 79/37/18.00 м² | 1.15 сот.
Інформація щодо пропозиції
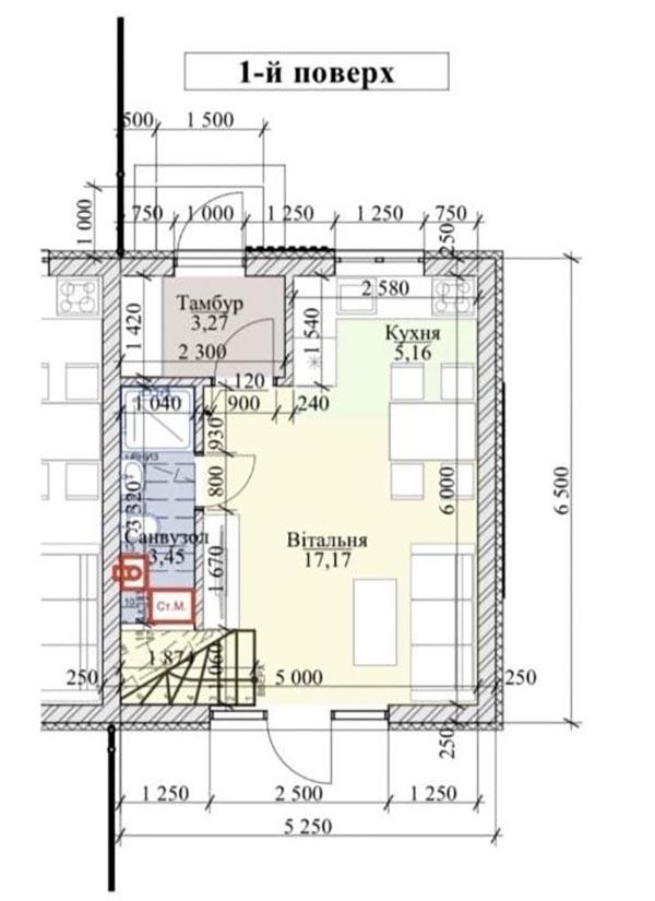
Продаж 2-поверхового таунхауса в норвезькому стилі
Пропонується сучасний таунхаус загальною площею 79 м², розташований на вул. Молодецька. Будинок введений в експлуатацію, можна одразу розпочинати ремонт.
Основні характеристики:
Поверховість: 2 поверхи
Загальна площа: 79 м²
Кількість кімнат: 3
Кухня-студія: 22,33 м²
Санвузли: 2
Земельна ділянка: 1,15 сотки (у власності)
Конструкція та технічні характеристики:
Стіни: газоблок
Фасад: утеплення пінопласт, декоративна штукатурка
Вікна: двокамерні склопакети
Дах: профнастил, утеплення мінеральною ватою
Свердловина: 72 м
Септик: 4 м³
Електроенергія: 10 кВт (підключено)
Вода: підключена
Територія: бруківка, огорожа з металопрофілю
Переваги:
Власний закритий дворик
2 власних паркомісця перед будинком
Земельна ділянка у приватній власності
Інфраструктура та локація:
Поруч озеро та ліс, ЦНАП, салони краси, автомайстерні, магазини та вся необхідна інфраструктура.
У безпосередній близькості розташовані ЖК Амстердам, ЖК White Village Rent, відділення Нова пошта, супермаркети Сільпо та Фора, школи та державні і приватні дитячі садки.
Таунхаус стане чудовим варіантом для тих, хто шукає сучасне житло з власною ділянкою, паркомісцями та зручною локацією поруч із природою та міською інфраструктурою.
Комісійні АН сплачує покупець!
За додатковою інформацією звертайтеся за вказаним номером телефона. Надаємо повний спектр послуг з купівлі та продажу квартир та будинків.
Великий досвід допомоги в купівлі квартир за державними програмами:
1) єОселя
2) Житло для ВПО та військових (постанова 280)
3) Сертификат за зруйноване житло (єВідновлення)
Юридична консультація щодо придбання нерухомості, попередній прорахунок витрат при купівлі житла, для наших клієнтів безкоштовно!
З повагою АН Ideal Home!
- Ціна: 51 300 $ (≈649 $ за кв. метр)
- Клас житла: комфорт
- Ремонт: без ремонту
- Кількість кімнат: 3
- Площа загальна, м²: 79
- Площа житлова, м²: 37
- Площа кухні, м²: 18.00
- Площа ділянки, сот.: 1.15
- Кількість поверхів: 2
- Краєвид із вікна: двір, вулиця
Комунікації
- Вода:
- свердловина;
- Газ:
- немає;
- Опалення:
- електричне;
- Каналізація:
- септик;
Параметри об’єкта
- Матеріал стін:
- газоблок;
- Матеріал перекриттів:
- залізобетон;
- Висота стелі:
- 3;
- Під’їздна дорога:
- асфальт;
- Утеплення:
- Зовнішнє;
Стан об’єкта
- Проводина:
- мідь, гарний стан;
- Вікна:
- металопластик, гарний стан;
- Двері вхідні:
- броньовані, гарний стан;
Інфраструктура та сервіс
- Заклади освіти:
- школа, дитсадок;
- Банківськи послуги:
- відділення банку, банкомат, термінал прийому платежів, пункт обміну валют;
- Побутовий сервіс:
- мінімаркет, супермаркет, торгівельний центр, ринок, парковка перед будинком, закріплене паркомісце, аптека, клініка, перукарню, пошта;
- Релаксаційні сервіси:
- парк (сад), дитячий майданчик, ліс, озеро / річка;
- Об’єкти громадського харчування:
- кафе, ресторан, фастфуд, бар;
Інше
- Власність:
- приватна;
- Дата оновлення інформації:
- 19.02.2026;
- Відкладено до:
- Сьогодні;