Продаж будинку Молодіжна вул., Гореничі, Бучанський район
3 кімн. | 147/70/15.00 м² | 9 сот.
Інформація щодо пропозиції
продам будинок в горенечах
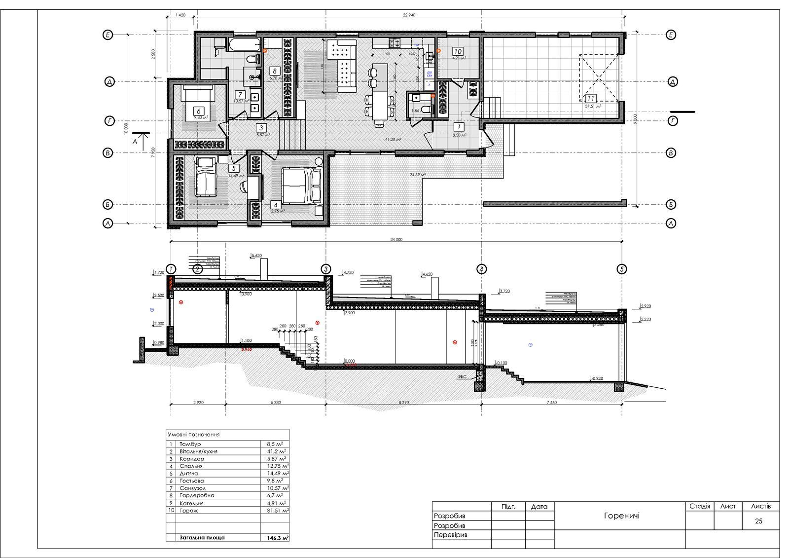
1. Ділянка: - ділянка під ухилом - 9 соток - біля ділянки проходить газ. - вигрібна яма - дренажна яма відводу дощової води (водовідведення) 2. Будинок - 115 м.кв. будинок, 31 м.2 гараж (загальна 146 м.2.) - навіс для авто - Фундамент свайний - стіни зовнішні (несучі) - керамоблок, утеплення мінватою - стіни внутрішні - газоблок - покрівля - мембрана - вікна Rehau - будинок побудовано у трьох рівнях. Перший - гараж, навіс. Другий рівень - гостьова, тамбур, санвузол, котельня. Третій рівень - спальня, дитяча, кабінет, гардеробна, санвузол - електрика 15 кВт - вода (скважина) заведена у будинок 3. Загальне - Бучанський район, с. Гореничі, 5 км. від Києва. - Маркет АТБ в 100м, Фора 900м - MC Donald`s - 1.5 км - Дитячий садочок - 300м - Школа - 2 км. Будинок, 1 поверх, 3 кімнати. Площа ділянки 9 соток. Будинок побудований в 2021 році. Загальний стан будинку - Без ремонту Комісійні АН сплачує покупець!
За додатковою інформацією звертайтеся за вказаним номером телефона. Надаємо повний спектр послуг з купівлі та продажу квартир та будинків.
Великий досвід допомоги по купівлі квартир за державними програмами:
1) Є-оселя
2) Житло для ВПО та військових (постанова 280)
3) Сертификат на зруйноване житло (є-відновлення)
Юридична консультація щодо придбання нерухомості, попередній прорахунок витрат при купівлі житла, для наших клієнтів безкоштовно!
З повагою АН Ideal Home!
- Ціна: 155 000 $ (≈1 054 $ за кв. метр)
- Клас житла: комфорт
- Ремонт: без ремонту
- Кількість кімнат: 3
- Площа загальна, м²: 147
- Площа житлова, м²: 70
- Площа кухні, м²: 15.00
- Площа ділянки, сот.: 9
- Кількість поверхів: 1
Комунікації
- Вода:
- свердловина;
- Газ:
- можлива газифікація;
- Опалення:
- без опалення;
- Каналізація:
- септик;
Інше
- Дата оновлення інформації:
- Сьогодні в 06:59;
- Відкладено до:
- Сьогодні;